ÉCOLOGIE
ISA2005 2023
Résidence Raspail à Alfortville
Rénovation d'une maison année 30 en Co-living - Alfortville - Ile de France - France
PROGRAMME :
Résidence de co-living
ÉQUIPE :
Villien Architecte Urbaniste
MISSION :
Rénovation d'une maison des années 30
THÈME :
Rénovation écologique
MOTS CLÉS :
écologique, architecture
Rénovation d'une maison individuelle en Co-living.
L'ambition de ce projet est de créer une résidence de co-living organisée autour de la culture, de l'art et plus particulièrement de la musique. La mission d'ISA va de l'esquisse au DOE.
La rénovation de la maison se fait par le prisme écologique dans le choix des matériaux (chanvre, paille) pour l'isolation thermique du bâtiment, ainsi que le réemploi de matériaux existants déjà présents sur site.
L'analyse thermique du bâtiment est également prise en charge et permets de tester l'utilisation d'une calculette carbone pour analyser l'impact écologique de la rénovation.
Maison des années 30 - vue depuis la rue Raspail avant l'intérvention.
Maison des années 30 - vue depuis la rue Raspail avant l'intérvention.
Maison des années 30 - vue depuis la rue Raspail après l'intérvention.
Détails Art-Déco présents dans la conception du portail et dans la matérialité des sols.
Vue du jardin.
Plan des espaces exterieurs - espèces végétales conservées et déplacées
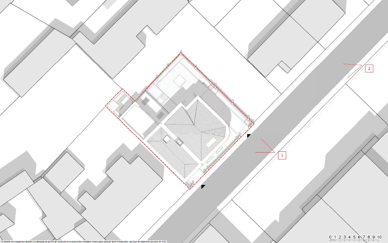
Plan masse ombré de la maison - état projeté
Coupe perspective - représentation des travaux de rénovation en bleu
Extrait du permis de construire - Abaissement de la terrasse
Vue surplombante du jardin. Nouvelles plantations et sols réalisés en matériaux de réemploi.
Allée réalisée en matériaux de déconstruction. Plateau en marbre rose transformé en zone de repos.
Vue des intérieurs. Mobiliers de designers des années '30.
Aménagement intérieur de la cuisine.
Installations lumineuses utilisées dans le projet.
Détail de la façade.
ISA2
MOE